#6598 – Investment – Kauf – Berlin Moabit

Vermietete Gewerbeeinheit in Berlin-Moabit

Diese Immobilie ist verkauft. Wir sind auf der Suche nach Ihrer Wunsch Immobilie.
3,0
Zimmer

Ihr Wohnungsverkauf in Berlin

Diese tolle Immobilie wurde bereits erfolgreich durch uns vermittelt.

Sie möchten eine Wohnung in Berlin verkaufen? Verlassen Sie sich auf die Erfahrung von über 2.000 Vermarktungen aus 15 Jahren Marktpräsenz. Über 1.000 Besucher suchen täglich bei uns nach Ihrer Berlin-Immobilie. Informieren Sie sich hier.

Mit großer Geste bildet das Vorderhaus gemeinsam mit dem Nachbargebäude die imposante Straßenecke, mit Balkonen, Erkern, Stuckelementen und einer ansprechenden Ladenzone. Die WEG besteht aus insgesamt 30 Wohnungen und zwei Gewerbeeinheiten. Das Blockinnere wird durch zwei Wohnhöfe mit Seitenflügel und Gartenhaus gebildet. Die meisten Wohnungen erhalten Balkone, die Dachgeschosse sind ausgebaut. Ein Stück echtes Berlin steht zum Verkauf in Form von gut geschnittenen Ein- bis Vier-Zimmer-Wohnungen mit Größen zwischen 36 m² - 98 m². Das Gemeinschaftseigentum befindet sich in sehr gutem Zustand, der Balkonanbau ist im Kaufpreis enthalten. Nachhaltige Mieten und Kaufpreise ermöglichen eine gute und stabile gute Wertentwicklung. Zögern Sie nicht, weitere Informationen und einen Besichtigungstermin anzufordern.

Wertentwicklung von Immobilien in Berlin-Moabit

3 Jahre

+0,20 %

5 Jahre

+19,00 %

10 Jahre

+111,90 %

Die Performance-Indikatoren stellen die durchschnittliche Wertentwicklung von Immobilien in Berlin-Moabit auf Basis von Median Angebotspreisen dar. Detaillierte Informationen zum lokalen Immobilienmarkt finden sich in unseren Marktberichten.

Markreport Moabit lesen

Basisinformationen

Projekt
Erasmus 1
Ort
10553 Berlin Moabit (auf Karte zeigen)
Typ
Kauf
Objektart
Investment
Etage
EG von 5
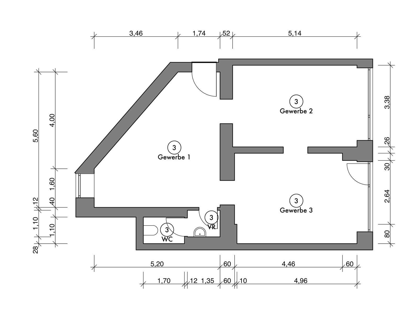
Gesamtfläche
64,3 m²
Zimmer
3,0

Lage

Das eher industriell geprägte Quartier rund um die Beusselstraße, Alt-Moabit und Huttenstraße mit dem schönen bekannten AEG-Turbinenhaus ist durchmischt mit ruhigen und ansprechenden Altbau-Wohnstraßen. Das seit 2008 rund um die Turmstraße initiierte Sanierungsgebiet und die Initiative „Aktive Zentren“ hat sehr zur positiven Entwicklung des Stadtteils beigetragen. Der Aufholprozess ist jedoch noch nicht abgeschlossen und birgt noch ein immenses Entwicklungspotential. In Moabit betrug die Mietsteigerung im 12-Monatszeitraum 41%. Der Nachfrageüberhang nach Wohnungen liegt in den meisten Kiezen über 20%. In ehemaligen Industriegebäuden lassen sich u.a. Kreativagenturen und Fitnessstudios nieder, die ehemalige Brauerei wurde zum Schultheiss-Quartier als Shopping- und Dienstleistungszentrum ausgebaut.

Moabit gewinnt an Beliebtheit und entwickelt zunehmend eine Sogwirkung auch auf internationales Publikum. Insgesamt kamen im vergangenen Jahr etwa 1.170 Personen hinzu.

Neben dem Stadtteilzentrum rund um die Turmstraße profitiert diese Lage von Ihrer Nähe zur TU Berlin (Technische Universität Berlin), die mit vielen Fachrichtungen und Wissenschaftseinrichtungen zu einem der wichtigsten Berliner Wissenschafts-Hub gewachsen ist.

Die Anbindung an den öffentlichen Nahverkehr ist sehr gut und entlang der Spree gelangt man schnell mit dem Fahrrad zur TU Berlin, zum Tiergarten oder zum Schloss Charlottenburg.

3 Schulen Anzahl der Schulen in der Nähe
  • Carl-Bolle-Grundschule
  • Katholische Schule Sankt Paulus
  • Miriam-Makeba-Grundschule
3 Kindergärten Anzahl der Kindergärten in der unmittelbarer Umgebung
  • Kita Safina
  • Kita Sprachwelt
  • Kita Swimmy
4 Kultur & Leisure Kultur & Leisure in der Nähe
  • ACUD
  • Admiralspalast
  • Konzerthaus Berlin
  • Berliner Philharmonie
1 Märkte Wochen- und Flohmärkte in der Nähe
  • Wochenmarkt Jagowstraße zw. Levetzow- und Agricolastraße

Newsletter und Immobilienangebote

Indem Sie fortfahren bestätigen Sie, dass Sie die Datenschutzrichtlinie der Guthmann Estate GmbH gelesen haben und akzeptieren. Für das Zustellen von individuellen Immobilienangeboten erlauben Sie der Guthmann Estate GmbH zwecks Erstellung Ihres Suchprofiles die Kontaktaufnahme mit Ihnen. Sie können sich selbstverständlich jederzeit von allen unseren Angeboten abmelden.