#5796 – Wohnen – Kauf – Berlin Lichtenberg

Lichtenberg Weitlingkiez: Bezugsfreie Erdgeschosswohnung

Diese Immobilie ist verkauft. Wir sind auf der Suche nach Ihrer Wunsch Immobilie.
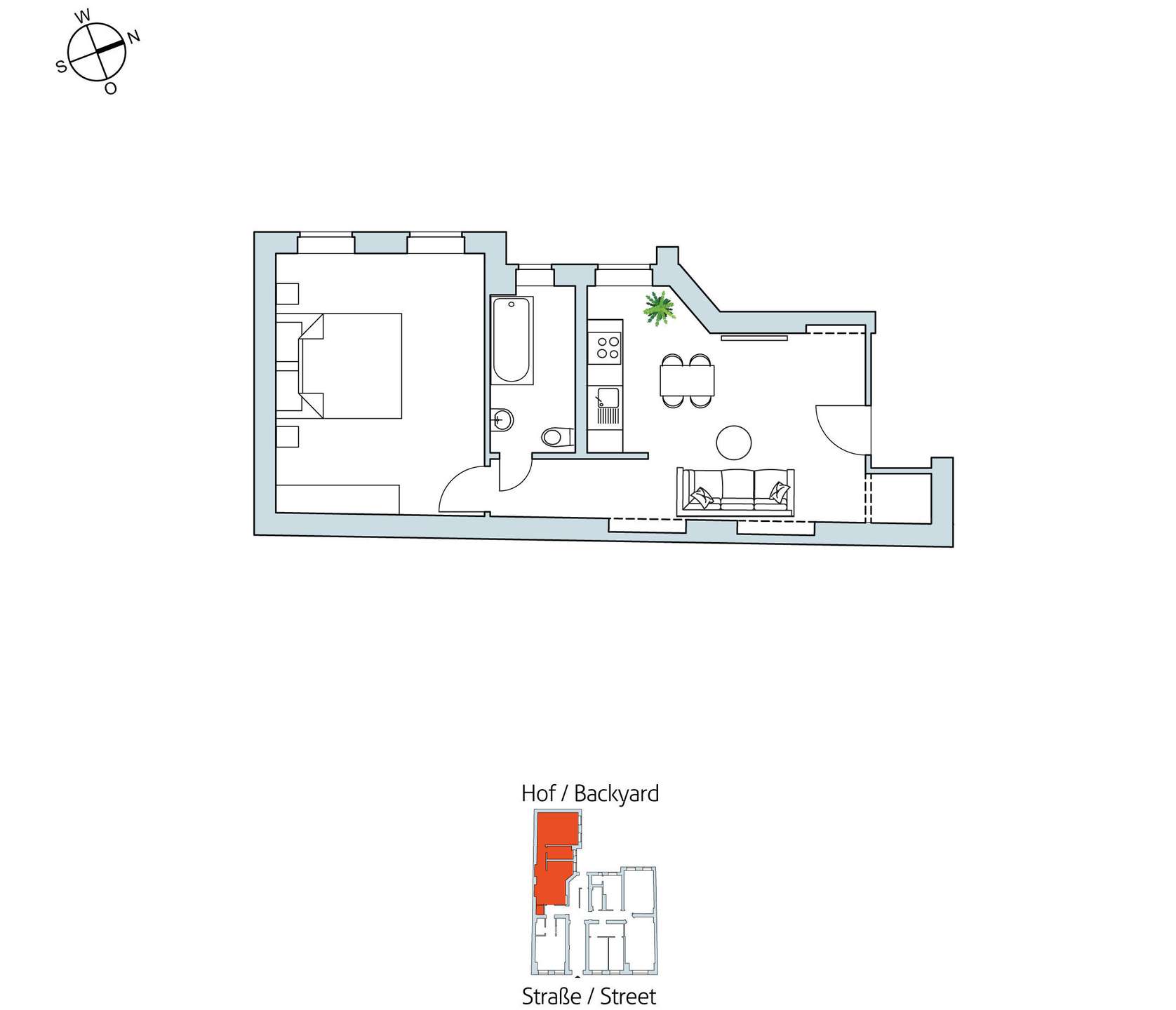
50,4 m²
Wohnfläche
2,0
Zimmer
  • Keller

Ihr Wohnungsverkauf in Berlin

Diese tolle Immobilie wurde bereits erfolgreich durch uns vermittelt.

Sie möchten eine Wohnung in Berlin verkaufen? Verlassen Sie sich auf die Erfahrung von über 2.000 Vermarktungen aus 15 Jahren Marktpräsenz. Über 1.000 Besucher suchen täglich bei uns nach Ihrer Berlin-Immobilie. Informieren Sie sich hier.

In dem ansprechenden Berliner Altbau im Weitlingkiez bieten wir Ihnen Kapitalanlagen zum Kauf an. Die Größen liegen zwischen 50 und 85 Quadratmetern und 2 bis 4 Zimmern. Typische Altbaugrundrisse und vorhandene Altbauelemente charakterisieren das Angebot. Derzeit wird die Rückfassade überarbeitet, die Immobilien befindet sich in einem guten und sehr gepflegten Erhaltungszustand. Die Wohnungen sind vermietet, die Mieten liegen im orts- und alterstypischen Bereich.

Wertentwicklung von Immobilien in Berlin-Lichtenberg

3 Jahre

-3,30 %

5 Jahre

+23,20 %

10 Jahre

+124,80 %

Die Performance-Indikatoren stellen die durchschnittliche Wertentwicklung von Immobilien in Berlin-Lichtenberg auf Basis von Median Angebotspreisen dar. Detaillierte Informationen zum lokalen Immobilienmarkt finden sich in unseren Marktberichten.

Markreport Lichtenberg lesen

Basisinformationen

Projekt
Der Weitlingkiez
Ort
10315 Berlin Lichtenberg (auf Karte zeigen)
Typ
Kauf
Objektart
Wohnung
Status
frei
Etage
EG von 4
Wohnfläche
50,4 m²
Zimmer
2,0

Lage

Das Haus liegt nur 7 Minuten vom S-Bahnhof Lichtenberg entfernt, im beliebten Weitlingkiez. Studentisches und internationales Publikum sowie ein zunehmend kreatives Umfeld prägt heute auch diesen Kiez. Allein im Jahr 2017 hatte Lichtenberg einen Bewohner/innen Influx von ca. 1.900 Personen. Nahversorgung und Infrastruktur sind sehr gut, im näheren Umfeld befinden sich 4 Universitäten. Lichtenberg präsentiert sich als prosperierender Investmentstandort.
Anbindung ÖPNV:
Bahnhof Lichtenberg, S 5, S7 und Regionalbahn, 7 Minuten zu Fuß
U-Bahnhof Friedrichsfelde: U5, 9 Minuten zu Fuß
Buslinien: 240/N94 und 296/N50
Universitäten: Hochschule für Technik & Wirtschaft HTW. Hochschule für Wirtschaft und Recht. Steinbeiß-Hochschule. Hochschule für Sozialwesen.
Infrastruktur und Grün:
Tierpark, Rummelsburger Bucht, Plänterwald, Einkaufsmöglichkeiten direkt vor Ort, Cafés und Restaurants im weiteren Umfeld.
Zwei internationale Klinikstandorte: Das Unfallkrankenhaus Marzahn und das Sana Klinikum.

3 Schulen Anzahl der Schulen in der Nähe
  • Bürgermeister-Ziethen-Grundschule
  • Robinson-Grundschule
  • Schule an der Victoriastadt
14 Kindergärten Anzahl der Kindergärten in der unmittelbarer Umgebung
  • BIP Kita Erlenhof
  • BIP Kita Sonnenhof
  • Deutsch-Russische Kita Glückspilze
  • Evangelische Kita der Paul-Gerhardt-Kirchengemeinde Lichtenberg
  • Kita Archenholdstraße
  • Kita CityKids Berlin
  • Kita Eitelstraße
  • Kita Lichtenzwerge
  • Kita Milchzahnbande
  • Kita Purzelbaum
  • Kita Pusteblume
  • Kita Rappelkiste
  • Kita Sonnenblume
  • Kita Sophienstraße

Newsletter und Immobilienangebote

Indem Sie fortfahren bestätigen Sie, dass Sie die Datenschutzrichtlinie der Guthmann Estate GmbH gelesen haben und akzeptieren. Für das Zustellen von individuellen Immobilienangeboten erlauben Sie der Guthmann Estate GmbH zwecks Erstellung Ihres Suchprofiles die Kontaktaufnahme mit Ihnen. Sie können sich selbstverständlich jederzeit von allen unseren Angeboten abmelden.